Moradia T2 de Dois Pisos | 140 m² de Construção | Projeto Chave na Mão
195 000 €
375 €/m²
2
Quartos
2
WC
140.6
m²
Condição do imóvel
project_approved
Ano de construção
2026
Área bruta
140.6 m²
Área terreno
520 m²
Referência
C0519-00208







1/16
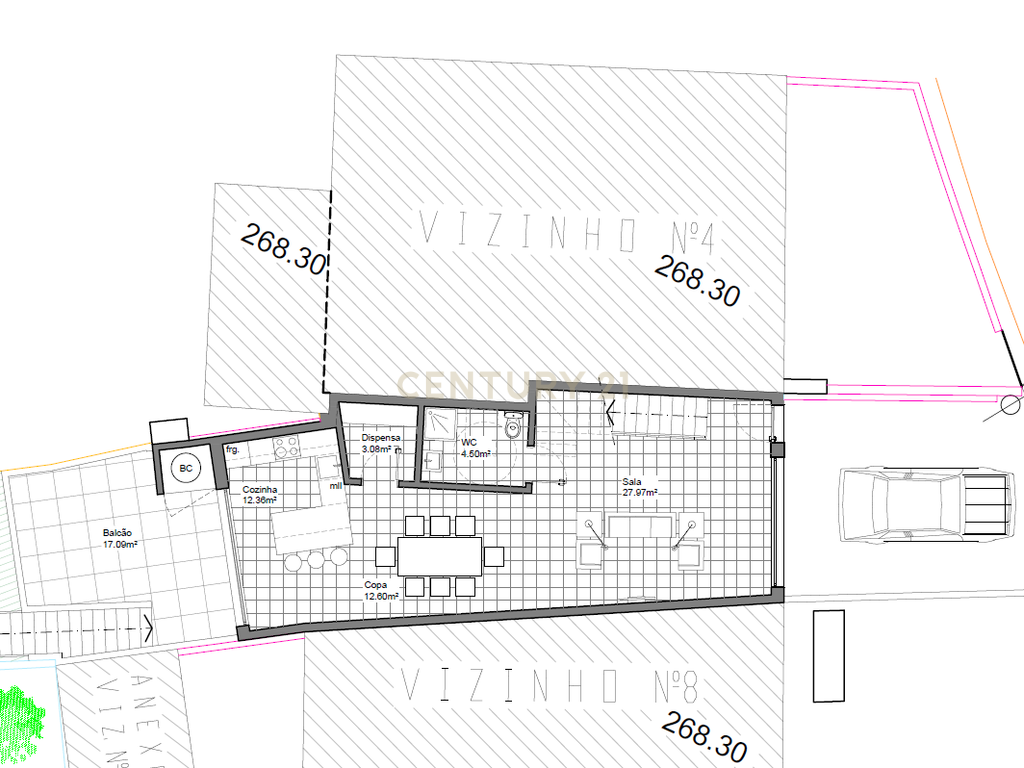
Apresentamos esta moradia de dois pisos em regime chave na mão, ideal para quem procura uma solução moderna, funcional e pronta a habitar.
Com 140 m² de área bruta de construção, o imóvel distribui-se por dois níveis bem definidos, permitindo uma clara separação entre a zona social e a zona privada. O projeto contempla linhas contemporâneas, vãos generosos que favorecem a entrada de luz natural e uma organização interior pensada para o conforto diário.
A modalidade chave na mão garante tranquilidade ao comprador, com a execução integral da obra incluída, desde a construção até aos acabamentos finais, mediante caderno de encargos previamente definido.
Uma excelente oportunidade para adquirir uma moradia nova, com arquitetura atual e solução completa, ideal para habitação própria ou investimento.
Com 140 m² de área bruta de construção, o imóvel distribui-se por dois níveis bem definidos, permitindo uma clara separação entre a zona social e a zona privada. O projeto contempla linhas contemporâneas, vãos generosos que favorecem a entrada de luz natural e uma organização interior pensada para o conforto diário.
A modalidade chave na mão garante tranquilidade ao comprador, com a execução integral da obra incluída, desde a construção até aos acabamentos finais, mediante caderno de encargos previamente definido.
Uma excelente oportunidade para adquirir uma moradia nova, com arquitetura atual e solução completa, ideal para habitação própria ou investimento.
Localização
Características
- approved_project
- Vista de campo
- Eletricidade
- Gás
- Gás
- Boa exposição à luz
Pontos de Interesse
Categoria - Nome
Distância
Café - Café Sonho do Norte
0.28 m
Café - Café Dutra
0.48 m
Creche - ATL da Escola EB1/JI da Algarvia
0.34 m
Local de culto - "Treato" da Feteira Grande (IPIA)
0.98 m
Local de culto - "Treato" da Cruz (IPIA)
0.96 m
drinking_water - Fontanário da Rua da Cruz (I)
0.96 m
Simular Crédito
541,00 €
195 000 €
Valor do Imóvel
195 000 €
Montante do empréstimo